Профиль, материал и технология изготовления кормового откидного подводного крыла для мотолодки "Казанка" аналогичны таковым для носового. Крыло крепится винтами М5 непосредственно в торец утолщенного конца стойки. Такая конструкция обеспечивает достаточную прочность соединения и вполне надежна.
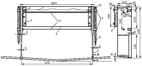
Стойки 1 крыла (рис. 71 и 72) сплошные, в нижней подводной части их толщина уменьшена до 5 мм, а в местах сопряжения с крылом имеется утолщение в 9 мм на высоту 10 мм.

Рис. 71. Конструкция кормового крыла.

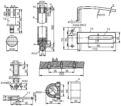
Рис. 72. Деталировка к рис. 71.
Нижние концы стоек тщательно подгоняются по крылу с учетом угла килеватости. Необходимо добиться того, чтобы крыло плотно прилегало к торцу стойки по всей поверхности соединения. Перед сборкой узла соприкасающиеся поверхности покрываются автомобильной шпаклевкой.
Транцевая доска 2 крепится к стойкам переходными стальными угольниками 3 на винтах М8. С внешней стороны к стойкам крепятся по два кронштейна (бронза или латунь), при помощи которых крыльевое устройство навешивается на направляющие трубы 8, по которым оно должно легко перемещаться.
Фиксатор 6 представляет собой дюралевую втулку, внутри которой находится пружина и шток 11. Шток через совмещенные отверстия в стойке, подшипнике и трубе под действием пружины фиксирует крыльевое устройство в необходимом положении. Штоки фиксаторов соединяются стальным тросиком.
Направляющие трубы 8 выполняются из цельнотянутых дюралевых труб Ø3/4 дюйма. Отрезок трубы нужной длины протачивают до Ø26 и шлифуют. С обеих сторон в него запрессовываются и крепятся винтами или заклепками стальные заглушки. В верхней заглушке 10 по центру сверлится отверстие и нарезается резьба. Нижняя заглушка 9 заканчивается ушком с отверстием Ø8. После сборки направляющие трубы хромируют.
Установка направляющих производится в следующем порядке. Имеющиеся в корме лодки угольники для крепления сланей удаляются. Из листового дюраля толщиной 5 мм вырезают две усиливающие накладные пластины длиной по 170 мм (ширина определяется по месту). В нижней части транца сверлятся два отверстия Ø10 под стойки 12. Обе пластины устанавливают изнутри на транце и в них по месту размечаются отверстия, оставшиеся от удаленных заклепок и под стойки 12 на пластинах размечается новое расположение угольников для крепления сланей. Далее угольники закрепляются винтами, устанавливаются и крепятся пластины, стойки закрепляются гайками изнутри корпуса. Герметизацию соединений обеспечивают герметиком и резиновыми шайбами.
Нижние концы направляющих труб соединяются со стойками 12 пальцами Ø8. Это сочленение позволяет в широких пределах изменять угол атаки кормового крыла. Положение направляющих труб для выбранного угла атаки фиксируется болтами, которые вворачиваются в верхние заглушки 10 через продольные пазы 13 в накладках 14.
Эти накладки выполняются из стального уголка 35×35. К одной полке приваривается стальная пластина, по осевой линии которой фрезеруется паз. Вдоль паза через 2 мм делаются насечки для отсчета делений при регулировке угла атаки. На другой полке сверлятся два отверстия для крепления накладки к корме лодки. Крепление накладок 14 должно обеспечивать строгую параллельность осей направляющих труб.
Осевые линии кронштейнов также должны быть параллельными и находиться в одной плоскости. Регулировка параллельности осуществляется поперечными тягами 5.
В данной конструкции были выбраны следующие основные размеры:
- разнос стоек кормового крыла 575 мм;
- высота нижней плоскости кормового крыла от основной 150 мм;
- размах носового крыла 1600 мм.






