к варианту 2
Откидные подводные крылья для лодки Казанка" выполняются из листового дюраля Д16АТ или Д1AT толщиной 8 мм и имеют сегментный профиль. Вначале заготовку по всей длине нужно обработать на фрезерном станке. После обработки заготовка должна иметь в сечении вид, показанный на рис. 59.

Рис. 59. Плоскости и профиль крыла
Остальное снимают напильником, проверяя доводку обработанной части крыла шаблоном, изготовленным из стали толщиной 3-4 мм. Перемещая шаблон вдоль поверхности крыла, оставляют на нем ряд параллельных рисок, указывающих на равномерность обработки или на необходимость доводки профиля. Такой способ обработки нельзя назвать совершенным, однако он вполне удовлетворяет требованиям точности и не слишком трудоемок.
После изготовления крыло полируется и анодируется. Если нет возможности анодировать, то крыло покрывается каким-либо антикоррозионным составом, автомобильной краской и т. д. Хорошие результаты дает покрытие спиртовым лаком с добавлением 0,5 % борной кислоты.
Стойки и крылья лучше приклепывать или привинчивать на угольниках, чем приваривать. Дюраль указанных марок с флюсом сваривается хорошо, но при охлаждении рядом со швом часто возникают трещины. Кроме этого, получить шов, по прочности равный основному металлу, довольно трудно.
Все стойки делаются из дюраля тех же марок. Толщина стоек кормового крыла равна 5 мм. Толщина основных стоек носового крыла переменная — от 8 до 4 мм.
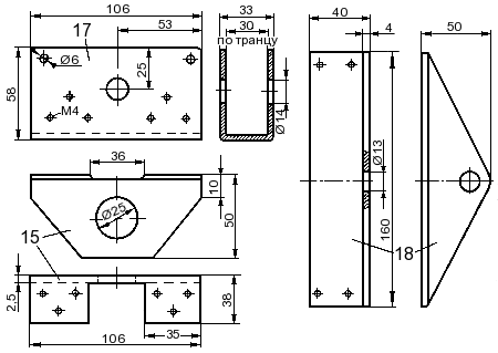
Упор 18 изготовляется из стального угольника 40×45 мм. Большая его полка обрабатывается, как показано на рис. 60, и крепится к боковым частям направляющих 20 (рис. 57) четырьмя болтами М6 с потайной головкой; приваривать угольник к направляющим не рекомендуется.

Рис. 60. Детали крепления винта червячной передачи.
15 -
верхний кронштейн; 17 - транцевая скоба; 18 - нижний упор.
Транцевая скоба 17 изготовляется из мягкой стали толщиной 2 мм: к ней крепится на болтах М4 скоба 15. В скобе 17 под эти болты нарезается резьба.
Транцевую доску 16 лучше изготовить из лиственницы или березы, покрыть олифой и покрасить водостойкой краской.
Сварка поперечины с маточной гайкой 13 выполняется с особой тщательностью; поперечину крепят четырьмя болтами М6 к внутренней стороне кронштейнов 12 транцевой доски. Для удобства монтажа и подгонки приваривать эту деталь нельзя.
Щечки направляющих обрабатывают на фрезерном станке и приваривают. При этом сварку производят со вставленными кронштейнами, после чего их выбивают, а направляющие рихтуются.
Рамки кронштейнов изгибают из угольника 30×30, проваривая разрезы по углам в местах сгиба. Кронштейн крепят к транцевой доске тремя болтами М8.
Детали П-образного упора 6 лучше сделать из дюраля Д16АТ толщиной 4 мм. Чтобы заготовки не лопнули при гибке, их следует зажать в тиски и нагреть до температуры около 300 °С. Нагрев нужно производить осторожно, так как в перегретом состоянии этот сплав легко разрушается даже от небольшого механического воздействия. Правильно нагретая заготовка изгибается со значительным усилием. Все части П-образного упора соединяются между собой винтами М4, под которые в угольнике 6 нарезается резьба. После сборки выступающие концы винтов спиливаются заподлицо с внутренней стороны угольника.
Для удобства монтажа крыльев лодку устанавливают вверх килем, выверяя горизонтальность по уровню, а при монтаже транцевой доски лодку ставят снова килем вниз.
Все отверстия, не показанные на рисунках, делаются в последнюю очередь, подгоняя их по месту.
Прежде всего, плоскости крыльев крепят на угольниках к стойкам строго перпендикулярно болтами М4 с потайной головкой, нарезав резьбу под эти болты в крыльях и стойках. Перед сборкой угольники покрывают антикоррозионным составом. Затем соединяют верхнюю часть стойки 1 носового крыла с нижней 2, после чего ставят замок 3.
Начинать монтаж крыльев нужно с установки П-образного упора 6 и верхнего упора 7. Эти детали предварительно крепят к корпусу лодки одним-двумя болтиками. Окончательно их закрепляют только после того, как плоскость крыла встанет строго параллельно основной линии лодки, а стойки плотно прилягут к вкладышу П-образного упора.
Монтаж кормового крыла не вызывает особых трудностей. Нужно только учитывать, что при максимально опущенной транцевой доске расстояние от крыла до киля должно составлять 200 мм, а при повороте крыла вокруг оси Г стойки не должны упираться в корпус лодки своими торцами. Кормовое крыло, как и носовое, должно устанавливаться параллельно основной линии лодки.
Монтаж крыла производят в последнюю очередь. Установка транцевой доски производится в следующем порядке. К кронштейнам 12 крепится контрольными болтиками поперечина 13, после чего кронштейны вставляют в направляющие 20 и последние закрепляются на транце. После этого к кронштейнам крепят доску 16. Собранный узел должен свободно перемещаться под собственным весом в направляющих, которые нужно смазать. Затем транцевую скобу 17 двумя сквозными болтами М6 крепят к транцу лодки. Под ось малой шестерни 19 в транце высверливается отверстие. Червяк 14 с большой шестерней ввинчивают до зацепления с малой шестерней и укрепляют деталь 15. Далее к направляющим крепят четырьмя болтами М6 нижний упор 18, в котором делают отверстие под хвостовик червяка. Затем окончательно крепят поперечину 13 четырьмя болтами М6 и шплинтуют гайку хвостовика.
Общее расположение крыльевого устройства на лодке и форма плоскостей крыльев приведены на рис. 61.

Рис. 61. Общее расположение крыльевого устройства на лодке.
Следует отметить, что с нагрузкой 450 кг "Казанка", оборудованная этими крыльями, развивает скорость около 42 км/час при расходе бензина 20 л на 100 км. Шаг штатного винта, наиболее согласованного с данным крыльевым устройством, составляет 242 мм. При снижении нагрузки шаг винта следует увеличить.






