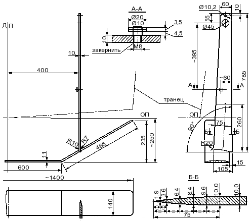
Изготовление кормового подводного крыла принципиально не отличается от изготовления носового. Поскольку профили одинаковы, заготовки для обоих крыльев мотолодки "Прогресс" делаются одновременно. Готовое крыло (рис. 40) крепится на кронштейне нижними упорными винтами (на стойках), скользящими по пазам при подъеме крыла, и штырями, входящими в отверстия верхних скоб.

Рис. 40. Кормовое крыло.
Материал - АМг-5. Недостающие размеры, технические требования к изготовлению и обработке аналогичны носовому крылу.
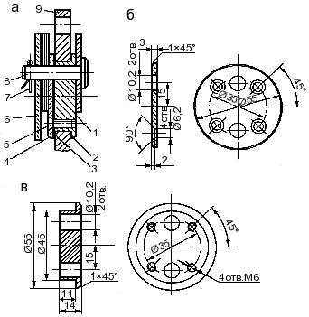
На верхних концах стоек устанавливаются эксцентриковые регулировочные втулки (подобные имеющимся на носовом крыле), которые обеспечивают изменение углов установки кормового крыла на 4° (рис. 41).

Рис. 41. Крепление верхних концов стоек крыла; а - узел в
сборе; б - шайба; в - эксцентрик.
1 - эксцентрик, материал
АМг-5 или сталь; 2, 3 - прокладка, текстолит или паронит, δ = 1; 4 -
шайба, АМг-5 или сталь; 5 - винт М6×15, 4 шт.; 6 - боковая стенка
кронштейна; 7 - шплинт; 8 - штырь; 9 - стойка крыла.
Втулки должны проворачиваться в стойках достаточно чтобы не было произвольного изменения угла под нагрузкой - при ходе на крыльях: усилие на рукоятке ключа при их повороте должно быть не менее 8-10 кгс. Необходимая посадка втулок обеспечивается подбором толщины прокладок.
Положение нижних упорных винтов на стойках находится при установке крыла на лодку. Развернув эксцентрики так, чтобы отверстия для штырей были в верхнем положении, крыло закрепляют под начальным углом установки. Этот угол определяется следующим образом: каждая из наклонных плоскостей всей своей поверхностью должна касаться нити, протянутой над стойками от кормового до носового крыла, а расстояние (по высоте) от носовой кромки кормового крыла до нити, протянутой в ДП между кормовыми кромками носового и кормового крыльев, должно составлять около 8 мм.
При этом положении крыла размечают отверстия в стойках под нижние упорные винты (между головками винтов и нижними упорными планками пазов надо сохранить зазор 2-3 мм). Установив упорные винты и заведя их в пазы кронштейна, следует разметить отверстия в стойках, предназначенные для фиксации крыла в поднятом положении.
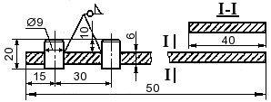
Разметку рекомендуется производить следующим образом: вынув штыри из скоб и вставив их в отверстия на верхних концах стоек, поднять крыло в крайнее верхнее положение и через отверстия в скобах на стойках разметить отверстия Ø10,2 мм для штырей. В эксцентриках просверлено по два отверстия Ø10,2: одно из них служит для установки штыря, а другое используется для поворота эксцентрика ключом (рис. 42) при изменении углов атаки. При перестановках крыла не допустимо путать эти отверстия.

Рис. 42. Ключ для регулировки угла установки кормового крыла.






