Для владельцев мотолодок "Прогресс", не располагающих достаточной технической базой ниже приводится описание схемы с глубокопогруженными подводными крыльями без ручной регулировки углов атаки на ходу.
Предлагаемая крыльевая система (автор В. Вейнберг), состоящая из носового и кормового глубокопогруженных крыльев, пересекающих свободную поверхность воды, обладает более высокими мореходными качествами, но увеличивает габаритную осадку по носовому крылу примерно на 200 мм.
Возможность саморегулирования возникающей на подводных крыльях подъемной силы за счет изменения их погруженной площади при изменении нагрузки моторной лодки "Прогресс" позволяет зачастую обходиться без ручной регулировки угла атаки крыльев на ходу. Это позволило упростить узлы крепления крыльев к корпусу. Однако, невозможность дистанционного управления углами атаки отрицательно сказывается на скоростных качествах лодки и в первую очередь на продолжительности выхода на крылья.
Данная система разработана для "Прогресса". При ее установке на другие лодки следует выдерживать соотношение расстояний от центра тяжести (далее - ЦТ) лодки (с расчетной загрузкой) до носового и кормового крыльев в пределах 1,1-1,25. Для "Прогресса" это соотношение должно быть равно 1,13.
Наиболее распространенный вариант нагрузки при использовании «Прогресса» под 30-сильным мотором — это 4 человека. В этом варианте полное водоизмещение с учетом веса крыльевой системы составит около 640 кг при отстоянии ЦТ от транца х = 1,55 м.
Если считать, что гидродинамическое качество крыльев К = 12, а сопротивление подводной части мотора на скорости 50 км/час равно 25 кг, расчетная скорость при ходе на крыльях составит около 55 км/час.
Нагрузка между носовым и кормовым крыльями в данном варианте распределяется следующим образом: Yн = 300 кг; Yк = 340 кг, а площади крыльев при заданном погружении составляют Sн = Sк = 0,154 м2, при этом коэффициенты подъемной силы соответственно равны Сyн = 0,18 и Сук = 0,21. Эти значения обеспечивают лодке удовлетворительные ходовые качества.
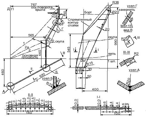
Использование V-образного носового крыла (рис. 31) в этой схеме существенно повышает прочность конструкции, а это позволяет делать крылья из легкого и технологичного сплава АМг-5.

Рис. 31. Носовое V-образное глубокопогруженное крыло.
Материал —
АМг-5. Вес около 15 кг. Допуски: по толщине профилей ± 0,2 мм; по основным
размерам деталей и крыла в целом, стрелка прогиба плоскостей крыла ± 0,2 мм; на
углы закрутки сечений крыла и стоек ± 15'.
Обработка, сборка подводных крыльев мотолодки "Прогресс"
Обработка плоскостей сегментного профиля подводного крыла мотолодки "Прогресс" может производиться фрезерованием или строганием полосы по заданным ординатам с оставлением cooтветствующих припусков на ручную обработку (опиловку, шлифовку и полировку с постоянной проверкой профиля по шаблонам). Подробнее...
Установка подводных крыльев на мотолодку "Прогресс"
Обработанные по профилю заготовки правятся и проверяются на прямолинейность по длине и отсутствие закрутки плоскостей в соответствии с допусками, указанными на чертеже (рис. 33-35). Носовое подводное крыло крепится на лодке при помощи верхних — палубных кронштейнов с эксцентричными втулками и двух нижних упоров стоек, расположенных на бортах выше скулы в районе шп.1-2а. Подробнее...
Крепление носового крыла моторной лодки "Прогресс"
Для изготовления и установки нижних упоров подводное крыло "Прогресса" необходимо установить под начальным углом атаки. Протянув шнур параллельно ДП (рис. 33), от среза транца под стойкой носового крыла моторной лодки, нужно повернуть его так, чтобы расстояние от носовой кромки крыла до шнурка, касающегося кормовой кромки плоскости, было равно 8 мм. Подробнее...
Крепление кормового крыла моторной лодки "Прогресс"
Изготовление кормового подводного крыла принципиально не отличается от изготовления носового. Поскольку профили одинаковы, заготовки для обоих крыльев моторной лодки "Прогресс" делаются одновременно. Готовое крыло (рис. 40) крепится на кронштейне нижними упорными винтами (на стойках), скользящими по пазам при подъеме крыла, и штырями, входящими в отверстия верхних скоб. Подробнее...
Испытания лодки после установки подводных крыльев
Перед спуском моторной лодки на воду следует еще раз убедиться в правильности расположения и надежности крепления подводных крыльев. Первый выход нужно делать, приняв начальные углы установки крыльев. Подробнее...






